ENG
寰宇置业 Universal Realty Group
  • 首页
  • 房产服务
    • 全部
    • 豪华别墅
    • 联排别墅
    • 公寓
    • 二手房
    • 酒庄
    • 农场
  • 其它服务
    • 移民服务
    • 留学服务
  • 新闻中心
  • 关于我们
  • 联系我们
  • 首页
  • 房产服务
    • 全部
    • 豪华别墅
    • 联排别墅
    • 公寓
    • 二手房
    • 酒庄
    • 农场
  • 其它服务
    • 移民服务
    • 留学服务
  • 新闻中心
  • 关于我们
  • 联系我们
Browse: Home / Sandringham豪华水景别墅–点亮你的海滨生活

Sandringham豪华水景别墅–点亮你的海滨生活


建筑风格融合了创新雕塑工艺,只为完善你的海滨生活。在爱德华街的拐角处的两层住所,从和谐流动的环境、自然的纹理和海风声中汲取设计灵感。


居家内部的设计是精致细腻的。顶楼客厅和用餐区均可以享受最无死角的海湾视野。在豪华的氛围里享受极简与轻松。这里设有一个可伸缩的玻璃墙,无缝连接到海湾观景台,适合大规模露天娱乐。

定制厨房的诞生,足以满足最苛刻的需求。功能齐全,创新与豪华浑然一体,厨房配备了综合型冰箱,流线型的橱柜和最好的设备。

位于一楼的客厅,俯瞰一个绝妙的花园,是放松身心的宁静空间。毗邻是一套两居室的客房和全瓷砖的浴室。主卧室私密性强,并设有大型装更衣室和豪华的卫浴设施。

物业包含:

双车位车库和额外的室外停车位,美国橡木地板,管道暖气,空调,LED照明,覆盖整个房屋的报警系统,保证了安全性和舒适性。

距离墨尔本的中央商务区仅15公里,生活设施齐全,交通便利。

详细信息:

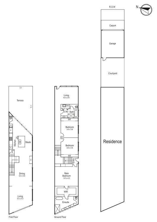
3房 2.5卫 3车位

地面层153平方米

第一层104平方米

阳台49平方米

花园44平方米

带锁车库停车位*2

室外停车位*1

户型图

有兴趣者请速联系寰宇置业专业顾问

了解更多



captcha

Widget Area 1

Click here to assign a widget to this area.

Widget Area 2

Click here to assign a widget to this area.

Widget Area 3

Click here to assign a widget to this area.

Widget Area 4

Click here to assign a widget to this area.

Social Icons Area

Click here to assign a widget to this area.

Links Area

Click here to assign a widget to this area.