ENG
寰宇置业 Universal Realty Group
  • 首页
  • 房产服务
    • 全部
    • 豪华别墅
    • 联排别墅
    • 公寓
    • 二手房
    • 酒庄
    • 农场
  • 其它服务
    • 移民服务
    • 留学服务
  • 新闻中心
  • 关于我们
  • 联系我们
  • 首页
  • 房产服务
    • 全部
    • 豪华别墅
    • 联排别墅
    • 公寓
    • 二手房
    • 酒庄
    • 农场
  • 其它服务
    • 移民服务
    • 留学服务
  • 新闻中心
  • 关于我们
  • 联系我们
Browse: Home / 无敌海景“小蛮腰”精品公寓

无敌海景“小蛮腰”精品公寓

小蛮腰
寰宇置业
小蛮腰,位于墨尔本炙手可热的南十字星地段,交通便利,生活配套齐全,78层的高度让您360°纵观墨尔本极致城市与海景。片区云集著名的皇冠购物中心,世界级餐馆一桥之遥,时尚的咖啡馆和酒吧以及众多画廊及艺术场地,购物、休闲、娱乐从心所欲。距离南十字星火车站仅100米,可直达墨尔本各地。

奢华舒适的室内精装细作,国际一线品牌配套,六星级酒店装修标准,为居住者缔造无可比拟的尊贵品质。

配置了独一无二的高端会所设施和服务:精品店,高尚会所设备, 包括空中花园, 泳池, 健身室及休憩酒廊等高级会所服务让您和家人的生活始终尊崇如一,洗尽繁嚣、放松身心。

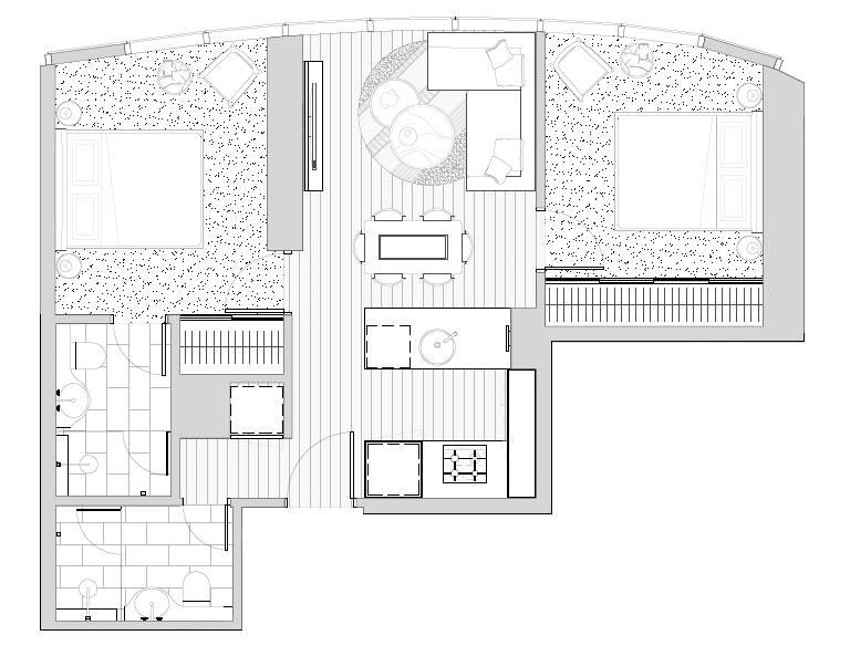
拥有780套户型有一房一卫/一房一卫+书房,两房1卫/两房两卫,共计116个停车位。该栋公寓有私人宴会厅,游泳池。酒吧。电影院等公共设施。

开发商:Fragrance Group(新加坡上市公司)

• 由多次获奖的Elenberg Fraser建筑师精心打造, 外型设计独特时尚
• 位于墨尔本市中心, 交通四通八达
• 步行可达RMIT大学及墨尔本大学
• 附近有多间餐厅,便利店及皇冠赌场, 满足衣食住行
• 景观开扬, 饱览墨尔本市中心景色及远眺 Port Phillip Bay, 尽显生活品味
• 低层1至5楼为高级酒店, 享有精致时尚装修, 突显地位
• 可望亚拉河及维多利亚港海景

区域介绍
出门100m内即是墨尔本最大交通中枢南十字星火车站,出门便有电车路线11,42,48,75,96,109,112,四通八达。
 
2.4km-North Melbourne Primary School 北墨尔本小学
 
2.8km-Carlton Gardens Primary School 卡尔顿花园小学
 
3.4km-Port Melbourne Primary School
 
3.6km-Albert Park College 阿尔伯特公园学院
 
2.7km-University High School 大学高中
 
2.3km-University of Melbourne 墨尔本大学
 
1.8km-RMIT University 皇家理工大学
 
1.6km-Simonds Catholic College 西门子天主教学院
 
1.6km-Melbourne Central Shopping Centre 墨尔本中心购物广场
 
1.5km-Queen Victoria Market 维多利亚集市
 
850m-Etihad Stadium 易迪海运动场
 
1km-Crown Melbourne 墨尔本皇冠赌场
 
2.3km-The Royal Melbourne Hospital 墨尔本皇家医院
 
3.1km-Royal Botanic Gardens Melbourne 皇家植物园

推荐户型:

了解更多



captcha

Widget Area 1

Click here to assign a widget to this area.

Widget Area 2

Click here to assign a widget to this area.

Widget Area 3

Click here to assign a widget to this area.

Widget Area 4

Click here to assign a widget to this area.

Social Icons Area

Click here to assign a widget to this area.

Links Area

Click here to assign a widget to this area.